Verkauf
Locatioun
Blog
Iwwer eis
+ Annonce hinzufügen
Menü
Angebotsauflistung
7
7
7
294 324 €
(3 822 € / m²)
Verkauf
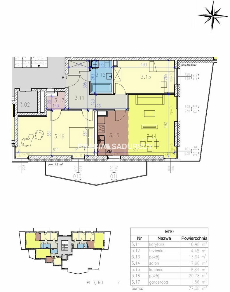
3
1
77 m²
Reduta, Kraków
Auf Karte anzeigen
Zu Favoriten
Teilen
schlofkummer
3
fläche
77 m²
badezimmer
1
lift
Nein
parken
Nein
zustand
keller
Nein
terrass
Nein
Beschreibung
Übersetzen zu Englisch
Marzysz, aby mieszkać w cichej i spokojnej okolicy nie rezygnując jednocześnie z uroków miasta? Jesteś w dobrym miejscu! Przedstawiamy inwestycję w k...
Vollständige Beschreibung anzeigen
Parameter
Parameter
Eigentum:
Perséinlech
Gebäudeart:
Sonstiges
Heizungsart:
Sonstiges
Möbliert:
Sonstiges
Alter des Angebots:
591 Tage
Aktualiséiert:
591 Tage
Anzeige melden
Standort
Reduta, Kraków
Standort ist ungefähr, genaue Adresse unbekannt.
Genaue Adresse anfordern
Karte vergrößern
Bürgerliche Ausstattung
BRACIA SADURSCY
Malwina Filas
E-Mail anzeigen
Telefon anzeigen
Verkäufer kontaktieren
BRACIA SADURSCY
Malwina Filas
E-Mail anzeigen
Telefon anzeigen
Verkäufer kontaktieren
Änlech Annoncen
|
Ähnliches im Ausland
|
Verkauf
Wohnungen
Polen