Verkauf
Locatioun
Blog
Iwwer eis
+ Annonce hinzufügen
Menü
Angebotsauflistung
260 000 €
(2 574 € / m²)
Verkauf
2
2+
101 m²
Zejtun, South Malta
Auf Karte anzeigen
Zu Favoriten
Teilen
schlofkummer
0
fläche
101 m²
badezimmer
2+
lift
Nein
parken
Nein
zustand
Sonstiges
keller
Nein
terrass
Nein
Beschreibung
Übersetzen zu Englisch
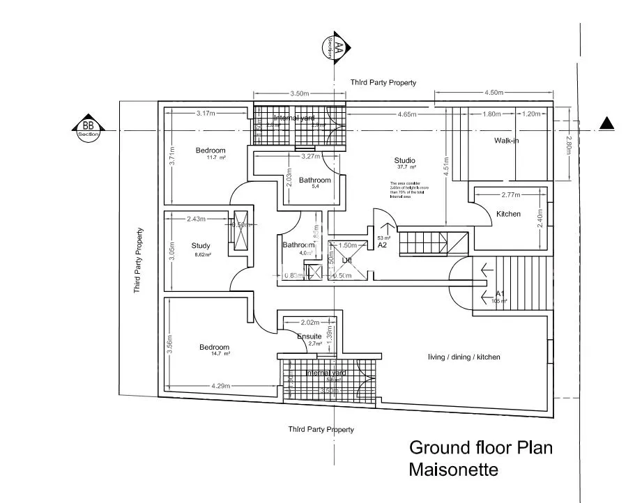
Brand new Maisonette for sale in Zejtun.Ground floor maisonette for sale in Zejtun. This property is being sold freehold and finished excluding bathro...
Vollständige Beschreibung anzeigen
Parameter
Ausstattung & Eigenschaften
Garage
Parameter
Eigentum:
Sonstiges
Zoustänn:
Sonstiges
Gebäudeart:
Sonstiges
Möbliert:
Sonstiges
Alter des Angebots:
675 Tage
Aktualiséiert:
634 Tage
Anzeige melden
Standort
Zejtun, South Malta
Standort ist ungefähr, genaue Adresse unbekannt.
Genaue Adresse anfordern
Karte vergrößern
Bürgerliche Ausstattung
Sara Grech Limited
Sara, Sara Grech Ltd LEK Business Centre Triq L’Esportaturi CBD Zone 2 Birkirkara, CBD 2040
E-Mail anzeigen
Telefon anzeigen
Verkäufer kontaktieren
Sara Grech Limited
Sara, Sara Grech Ltd LEK Business Centre Triq L’Esportaturi CBD Zone 2 Birkirkara, CBD 2040
E-Mail anzeigen
Telefon anzeigen
Verkäufer kontaktieren
Änlech Annoncen
|
Ähnliches im Ausland
|
Sale
Apartments
Malta