Verkauf
Locatioun
Blog
Iwwer eis
+ Annonce hinzufügen
Menü
Angebotsauflistung
9
9
9
409 700 €
(4 138 € / m²)
Verkauf
filters.disposition_5
1
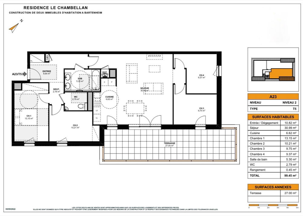
99 m²
Saint-Louis
Auf Karte anzeigen
Zu Favoriten
Teilen
schlofkummer
5
fläche
99 m²
badezimmer
1
lift
Ja
parken
Nein
zustand
Sonstiges
keller
Nein
terrass
Ja
Beschreibung
Übersetzen zu Englisch
Sur bartenheim, découvrez notre nouvelle résidence du 2 pièces au 5 pièces, avec de grandes terrasses, au calme en retrait de la route, dans un enviro...
Vollständige Beschreibung anzeigen
Parameter
Ausstattung & Eigenschaften
Lift
Parameter
Eigentum:
Sonstiges
Zoustänn:
Sonstiges
Energieeffizienz:
B - Sehr sparsam
Gebäudeart:
Sonstiges
Heizungsart:
Gasheizung
Alle Parameter anzeigen
Alter des Angebots:
346 Tage
Aktualiséiert:
345 Tage
Anzeige melden
Standort
Saint-Louis
Standort ist ungefähr, genaue Adresse unbekannt.
Genaue Adresse anfordern
Karte vergrößern
Bürgerliche Ausstattung
Loralis Immobilier
Telefon anzeigen
Verkäufer kontaktieren
Loralis Immobilier
Telefon anzeigen
Verkäufer kontaktieren
Änlech Annoncen
|
Ähnliches im Ausland
|
Verkauf
Wohnungen
Frankreich