Verkauf
Locatioun
Blog
Iwwer eis
+ Annonce hinzufügen
Menü
Angebotsauflistung
4
4
305 000 €
(6 630 € / m²)
Verkauf
1
1
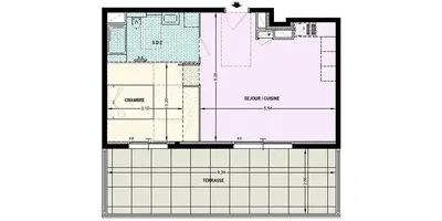
46 m²
Le Cannet
Auf Karte anzeigen
Zu Favoriten
Teilen
schlofkummer
1
fläche
46 m²
badezimmer
1
lift
Nein
parken
Nein
zustand
Sonstiges
keller
Nein
terrass
Nein
Beschreibung
Übersetzen zu Englisch
A GENTLE AND DYNAMIC LIVING ENVIRONMENT
Le Cannet embodies a true destination that combines the urban, student and cultural character, while preservin...
Vollständige Beschreibung anzeigen
Parameter
Parameter
Eigentum:
Sonstiges
Zoustänn:
Sonstiges
Gebäudeart:
Sonstiges
Möbliert:
Sonstiges
Alter des Angebots:
289 Tage
Aktualiséiert:
99 Tage
Anzeige melden
Standort
Le Cannet
Standort ist ungefähr, genaue Adresse unbekannt.
Genaue Adresse anfordern
Karte vergrößern
Bürgerliche Ausstattung
Living on the Côte d'Azur
Ab Kuijer
E-Mail anzeigen
Telefon anzeigen
Verkäufer kontaktieren
Living on the Côte d'Azur
Ab Kuijer
E-Mail anzeigen
Telefon anzeigen
Verkäufer kontaktieren
Änlech Annoncen
|
Ähnliches im Ausland
|
Verkauf
Wohnungen
Frankreich