SUPA24
Wohnzimmer
Wohnzimmer
Wohnzimmer
Wohnzimmer
Wohnzimmer
75 000 €
(1 103 € / m²)
Verkauf
Atypisch
1
68 m²
Балатон, Варна

schlafzimmeratypical
wohnung68 m²
badezimmer1
aufzugNEIN
parkenNEIN
zustandAndere
kellerNEIN
terrasseNEIN

Beschreibung

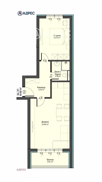
Светъл и просторен двустаен апартамент в чисто нов жилищен комплекс в един от най-спокойните райони на град Варна - Аспарухово. Апартаментът е ситуир...

Parameter

Parameter

Eigentum:
Andere
Zustand:
Andere
Gebäudetyp:
Andere
Heizungsart:
Andere
Ausrüstung:
Andere
Alter des Angebots: 7Tage
Aktualisiert: 7Tage

Ortschaften

Балатон, Варна
Die Standortangabe ist nur ungefähr, wir kennen die genaue Adresse nicht.

Öffentliche Einrichtungen

АДРЕС


Ähnliche Anzeigen

Ähnliches im Ausland