Verkauf
Miete
Blog
Über uns
+ Angebot hinzufügen
Menü
Angebotsliste
30
30
30
192 457 €
(1 964 € / m²)
Verkauf
2
1
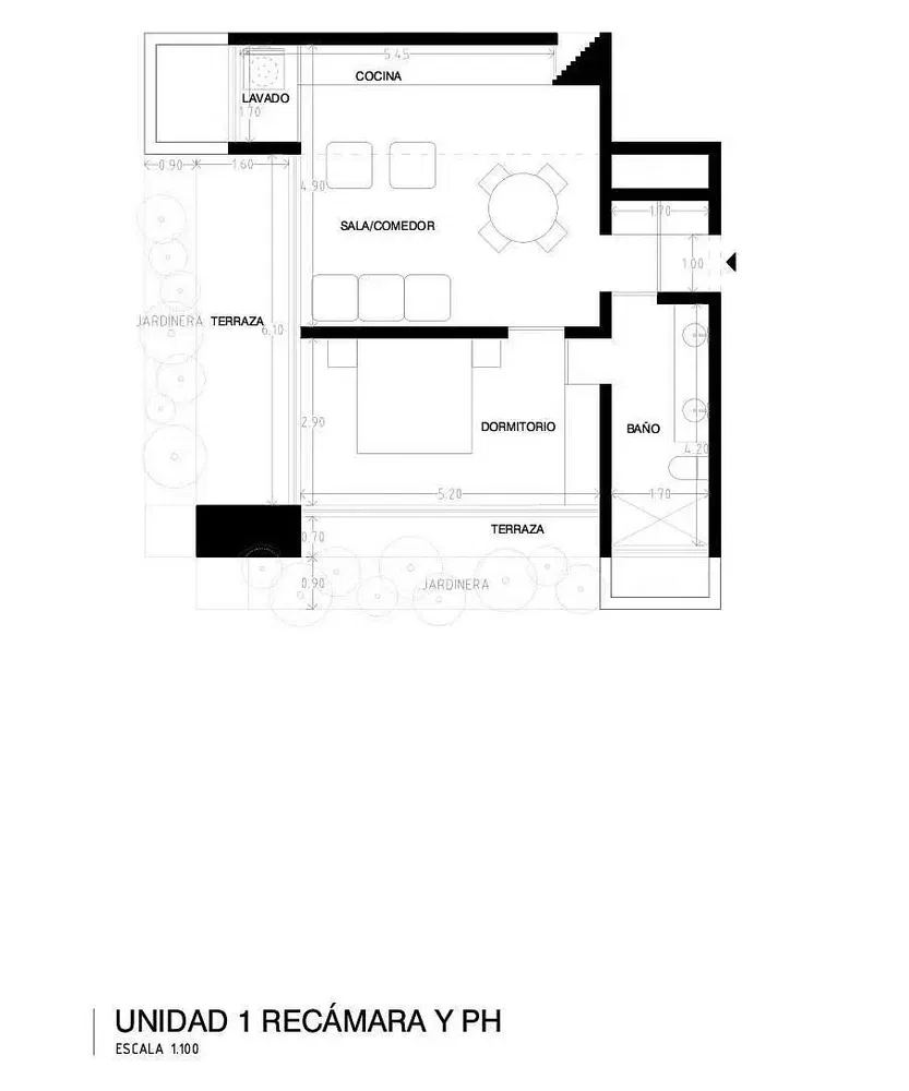
98 m²
Bacalar, Bacalar
Auf Karte zeigen
Zu Favoriten
Teilen
schlafzimmer
2
fläche
98 m²
badezimmer
1
lift
Ja
parkieren
Nein
status
Andere
keller
Nein
terrasse
Nein
Beschreibung
Übersetzen nach Englisch
There is a corner of the world where the calm rhythm of water sets the pace of life. A place where architecture is guided by the landscape and luxury ...
Vollständige Beschreibung anzeigen
Parameter
Ausstattung & Eigenschaften
Lift
Internet
Klimaanlage
Garten
Schwimmbad
Erstellt durch KI
Terrasse
Aussicht
Offenes wohnzimmer
Parameter
Eigentum:
Andere
Zustand:
Andere
Gebäudetyp:
Andere
Heizungsart:
Andere
Ausstattung:
Andere
Alter des Angebots:
4 Tage
Aktualisiert:
4 Tage
Inserat melden
Ort
Bacalar, Bacalar
Die Lage ist ungefähre, wir kennen die genaue Adresse nicht.
Um genaue Adresse bitten
Karte vergrößern
Öffentliche Infrastruktur
Daniele Zemignani
Telefon anzeigen
Verkäufer kontaktieren
Daniele Zemignani
Telefon anzeigen
Verkäufer kontaktieren
Ähnliche Angebote
|
Ähnliche im Ausland
|
Verkauf
Wohnungen
Mexiko