Verkauf
Mieten
Blog
Über uns
+ Eigenschaft hinzufügen
Speisekarte
Angebotsliste
13
13
13
177 000 €
(3 278 € / m²)
Verkauf
3
1
54 m²
Monvidalska, Pula
Auf Karte anzeigen
Zu Favoriten hinzufügen
Aktie
schlafzimmer
3
wohnung
54 m²
badezimmer
1
aufzug
NEIN
parken
NEIN
zustand
Andere
keller
NEIN
terrasse
NEIN
Beschreibung
Übersetzen nach Englisch
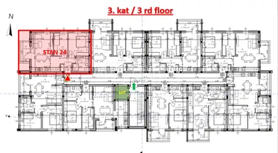
PULA – MONVIDAL | NOVOGRADNJA | STAN 24 – 3. KAT | 54,95 m²
U ponudi je stan oznake 24 u novom stambenom projektu u naselju Monvidal, Pula, smješten ...
Vollständige Beschreibung anzeigen
Parameter
Ausstattung & Funktionen
Klimaanlage
Parameter
Eigentum:
Andere
Zustand:
Andere
Gebäudetyp:
Andere
Heizungsart:
Andere
Ausrüstung:
Andere
Alle Parameter anzeigen
Alter des Angebots:
49Tage
Aktualisiert:
49Tage
Anzeige melden
Ortschaften
Monvidalska, Pula
Die Standortangabe ist nur ungefähr, wir kennen die genaue Adresse nicht.
Bitte genaue Adresse anfordern
Karte vergrößern
Öffentliche Einrichtungen
Mololongo Realestate
Zoran Stupar
E-Mail anzeigen
Telefonnummer anzeigen
Verkäufer kontaktieren
Mololongo Realestate
Zoran Stupar
E-Mail anzeigen
Telefonnummer anzeigen
Verkäufer kontaktieren
Ähnliche Anzeigen
Ähnliches im Ausland
Verkauf
Wohnungen
Kroatien