SUPA24
Sonstiges
465 000 €
(4 387 € / m²)
Verkauf
Atypisch
2+
106 m²

schlafzimmeratypical
wohnung106 m²
badezimmer2+
aufzugNEIN
parkenNEIN
zustandAndere
kellerNEIN
terrasseNEIN

Beschreibung

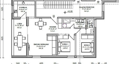
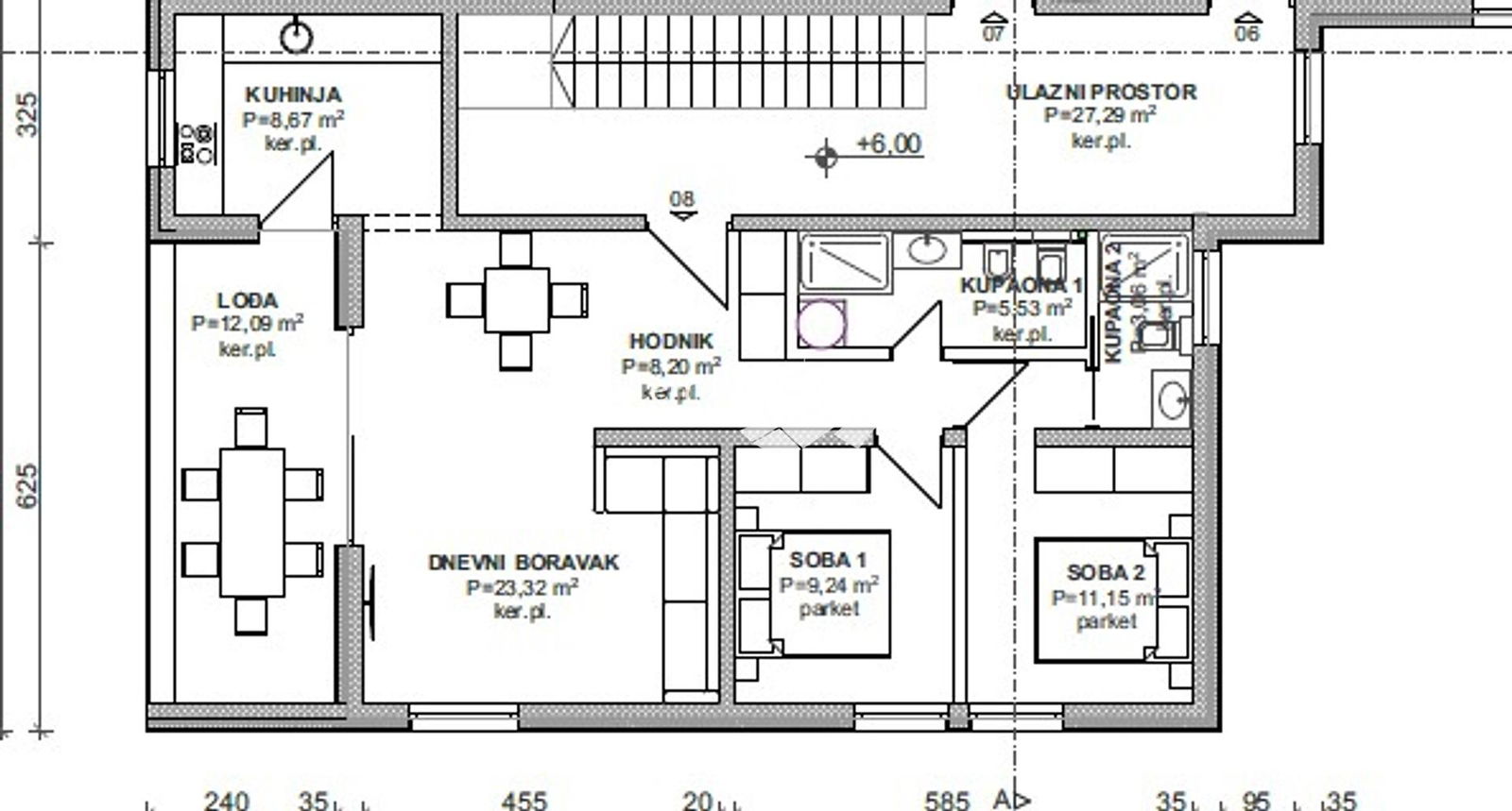
Istra, Medulin, Banjole okolica, stan;

- 106,61m2
- II. kat
- 2SS+DB
- dvije kupaonice
- velika lođa
- garaža
- podno grijanje u cijelom stanu
- svak...

Parameter

Ausstattung & Funktionen

Parameter

Eigentum:
Andere
Zustand:
Andere
Gebäudetyp:
Andere
Heizungsart:
floor, other
Ausrüstung:
Andere
Alter des Angebots: 333Tage
Aktualisiert: 35Tage

Ortschaften

Die Standortangabe ist nur ungefähr, wir kennen die genaue Adresse nicht.

Öffentliche Einrichtungen

Terram team


Sandra Kralj

Ähnliche Anzeigen

Ähnliches im Ausland