Verkauf
Miete
Blog
Über uns
+ Angebot hinzufügen
Menü
Angebotsliste
4
4
460 000 €
(5 349 € / m²)
Verkauf
filters.disposition_4
1
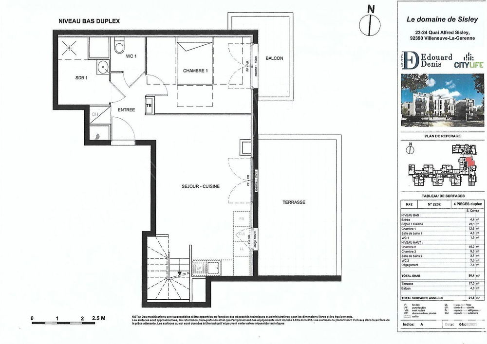
86 m²
VILLENEUVE-LA-GARENNE
Auf Karte zeigen
Zu Favoriten
Teilen
schlafzimmer
4
fläche
86 m²
badezimmer
1
lift
Ja
parkieren
Nein
status
Andere
keller
Nein
terrasse
Ja
Beschreibung
Übersetzen nach Englisch
iad France - Andres Plumail (06 58 83 96 29) vous propose : Découvrez notre future résidence à Villeneuve-la-Garenne située face à la Seine sur un emp...
Vollständige Beschreibung anzeigen
Parameter
Ausstattung & Eigenschaften
Lift
Parameter
Eigentum:
Andere
Zustand:
Andere
Gebäudetyp:
Andere
Heizungsart:
Andere
Ausstattung:
Andere
Alter des Angebots:
344 Tage
Aktualisiert:
344 Tage
Inserat melden
Ort
VILLENEUVE-LA-GARENNE
Die Lage ist ungefähre, wir kennen die genaue Adresse nicht.
Um genaue Adresse bitten
Karte vergrößern
Öffentliche Infrastruktur
IAD France
Telefon anzeigen
Verkäufer kontaktieren
IAD France
Telefon anzeigen
Verkäufer kontaktieren
Ähnliche Angebote
|
Ähnliche im Ausland
|
Verkauf
Wohnungen
Frankreich