Verkauf
Miete
Blog
Über uns
+ Angebot hinzufügen
Menü
Angebotsliste
339 500 €
(5 476 € / m²)
Verkauf
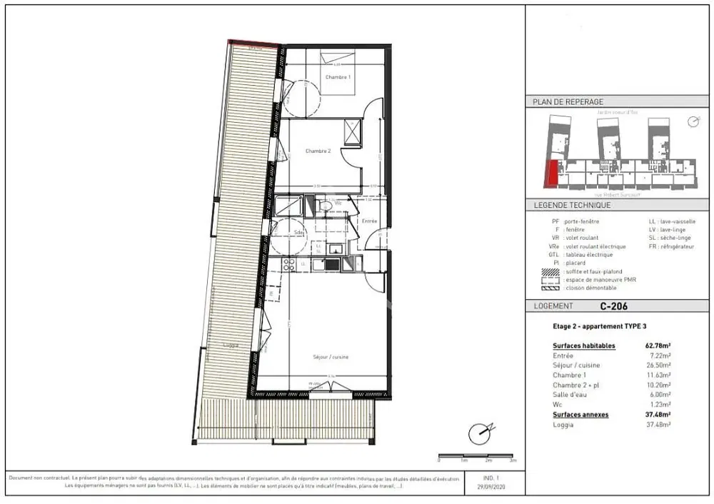
3
1
62 m²
ANGERS
Auf Karte zeigen
Zu Favoriten
Teilen
schlafzimmer
3
fläche
62 m²
badezimmer
1
lift
Ja
parkieren
Nein
status
Andere
keller
Nein
terrasse
Nein
Beschreibung
Übersetzen nach Englisch
ANGERS emplacement privilégié quartier Ney-Pasteur, dans un élégant ensemble résidentiel à 5 mn de l'hypercentre et pourtant au calme d'un environnem...
Vollständige Beschreibung anzeigen
Parameter
Ausstattung & Eigenschaften
Lift
Erstellt durch KI
Separate toilette
Parameter
Eigentum:
Andere
Zustand:
Andere
Gebäudetyp:
Andere
Heizungsart:
Andere
Ausstattung:
Andere
Alle Parameter anzeigen
Alter des Angebots:
11 Tage
Aktualisiert:
11 Tage
Inserat melden
Ort
ANGERS
Die Lage ist ungefähre, wir kennen die genaue Adresse nicht.
Um genaue Adresse bitten
Karte vergrößern
Öffentliche Infrastruktur
l'Adresse Anjou-Maine - l'Adresse Angers - Rue des Lices
Telefon anzeigen
Verkäufer kontaktieren
l'Adresse Anjou-Maine - l'Adresse Angers - Rue des Lices
Telefon anzeigen
Verkäufer kontaktieren
Ähnliche Angebote
|
Ähnliche im Ausland
|
Verkauf
Wohnungen
Frankreich