Verkauf
Miete
Blog
Über uns
+ Angebot hinzufügen
Menü
Angebotsliste
6
6
6
249 000 €
(4 016 € / m²)
Verkauf
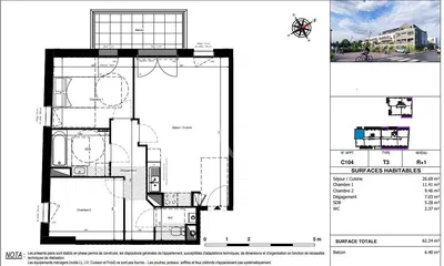
3
1
62 m²
SAINT SYLVAIN D ANJOU
Auf Karte zeigen
Zu Favoriten
Teilen
schlafzimmer
3
fläche
62 m²
badezimmer
1
lift
Ja
parkieren
Nein
status
Andere
keller
Nein
terrasse
Nein
Beschreibung
Übersetzen nach Englisch
Située au coeur du bourg de Saint-Sylvain-d'Anjou, cette résidence intimiste de 30 appartements vous séduira par son architecture sobre, élégante et c...
Vollständige Beschreibung anzeigen
Parameter
Ausstattung & Eigenschaften
Lift
Erstellt durch KI
Separate toilette
Parameter
Eigentum:
Andere
Zustand:
Andere
Gebäudetyp:
Andere
Heizungsart:
Gas
Ausstattung:
Andere
Alle Parameter anzeigen
Alter des Angebots:
11 Tage
Aktualisiert:
11 Tage
Inserat melden
Ort
SAINT SYLVAIN D ANJOU
Die Lage ist ungefähre, wir kennen die genaue Adresse nicht.
Um genaue Adresse bitten
Karte vergrößern
Öffentliche Infrastruktur
l'Adresse Anjou-Maine - l'Adresse Angers - Place du lycée
Telefon anzeigen
Verkäufer kontaktieren
l'Adresse Anjou-Maine - l'Adresse Angers - Place du lycée
Telefon anzeigen
Verkäufer kontaktieren
Ähnliche Angebote
|
Ähnliche im Ausland
|
Verkauf
Wohnungen
Frankreich