SUPA24
Wohnzimmer
Wohnzimmer
Wohnzimmer
Wohnzimmer
Wohnzimmer
230 €
(3 € / m²)
Mieten
1
1
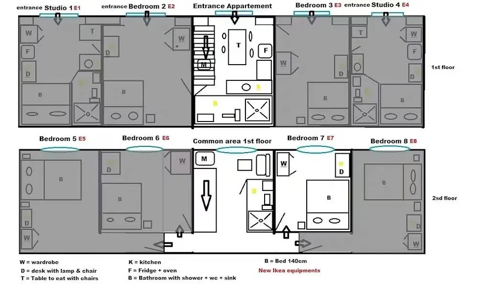
90 m²
József körút, Budapest

schlafzimmer1
wohnung90 m²
badezimmer1
aufzugNEIN
parkenNEIN
zustandAndere
kellerNEIN
terrasseNEIN

Beschreibung

For more details, please visit https://housinganywhere.com/room/ut1550683/hu/Budapest/j-zsef-k-r-t?utm_content=Budapest&utm_medium=affiliate&utm_sourc...

Parameter

Parameter

Eigentum:
Andere
Zustand:
Andere
Gebäudetyp:
Andere
Heizungsart:
Andere
Ausrüstung:
möbliert
Alter des Angebots: 8Tage
Aktualisiert: 8Tage

Ortschaften

József körút, Budapest
Die Standortangabe ist nur ungefähr, wir kennen die genaue Adresse nicht.

Öffentliche Einrichtungen

HousingAnywhere


Ähnliche Anzeigen

Ähnliches im Ausland