Verkauf
Mieten
Blog
Über uns
+ Eigenschaft hinzufügen
Speisekarte
Angebotsliste
24
24
24
504 €
(8 € / m²)
Mieten
3
1
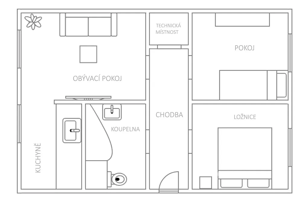
62 m²
Česká, Brüx
Auf Karte anzeigen
Zu Favoriten hinzufügen
Aktie
schlafzimmer
3
wohnung
62 m²
badezimmer
1
aufzug
NEIN
parken
NEIN
zustand
Originalzustand
keller
NEIN
terrasse
NEIN
Beschreibung
Übersetzen nach Englisch
Ráda bych vám nabídla k dlouhodobému podnájmu hezký byt 3+kk o výměře 62 m² v ulici Česká v Mostě.
Jakmile vstoupíme do chodby, máme po pravé straně...
Vollständige Beschreibung anzeigen
Parameter
Generiert aus KI
Separate küche
Bad
Parameter
Eigentum:
Kooperative
Zustand:
Originalzustand
Energieintensität:
G – Extrem verschwenderisch
Gebäudetyp:
Panel
Boden:
3. Etage von 7
Alter des Angebots:
48Tage
Aktualisiert:
12Tage
Anzeige melden
Ortschaften
Česká, Brüx
Die Standortangabe ist nur ungefähr, wir kennen die genaue Adresse nicht.
Bitte genaue Adresse anfordern
Karte vergrößern
Öffentliche Einrichtungen
The Most reality s.r.o. - Century 21
Martina Wohlová
E-Mail anzeigen
Telefonnummer anzeigen
Verkäufer kontaktieren
The Most reality s.r.o. - Century 21
Martina Wohlová
E-Mail anzeigen
Telefonnummer anzeigen
Verkäufer kontaktieren
Ähnliche Anzeigen
Ähnliches im Ausland
Miete
Wohnungen
Tschechien
Aussiger Region
Brüx
Brüx II