SUPA24
Wohnzimmer
Wohnzimmer
Wohnzimmer
610 €
(3 € / m²)
Mieten
1
1
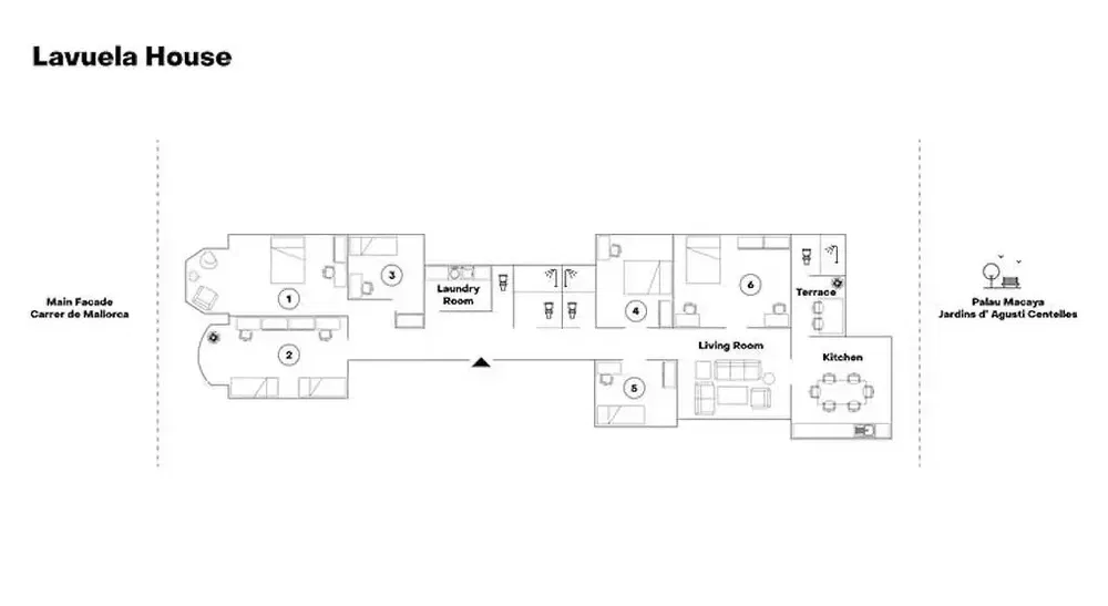
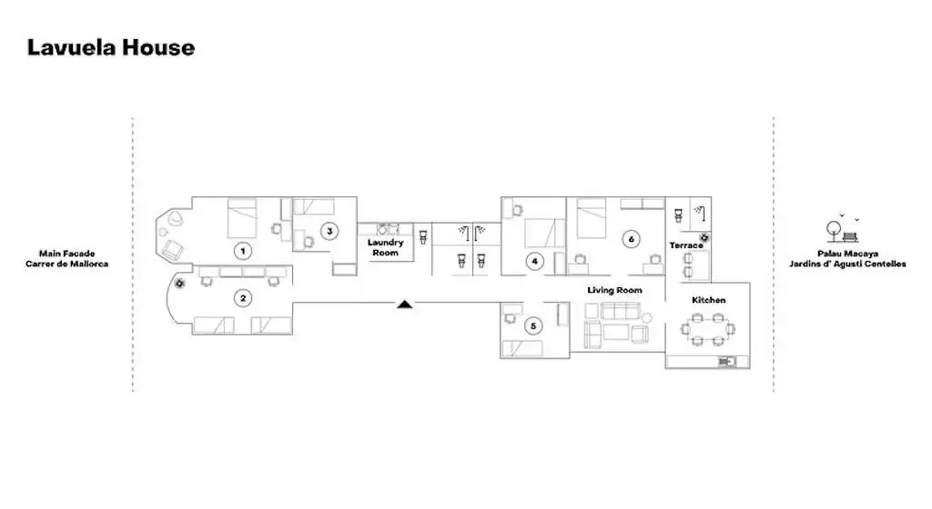
190 m²
Carrer de Mallorca, Barcelona

schlafzimmer1
wohnung190 m²
badezimmer1
aufzugNEIN
parkenNEIN
zustandAndere
kellerNEIN
terrasseNEIN

Beschreibung

For more details, please visit https://housinganywhere.com/room/ut1665566/es/Barcelona/carrer-de-mallorca?affiliate_partner_id=113009&utm_content=Barc...

Parameter

Parameter

Eigentum:
Andere
Zustand:
Andere
Gebäudetyp:
Andere
Heizungsart:
Elektrisch
Ausrüstung:
möbliert
Alter des Angebots: 51Tage
Aktualisiert: 51Tage

Ortschaften

Carrer de Mallorca, Barcelona
Die Standortangabe ist nur ungefähr, wir kennen die genaue Adresse nicht.

Öffentliche Einrichtungen

HousingAnywhere


Ähnliche Anzeigen

Ähnliches im Ausland