Verkauf
Mieten
Blog
Über uns
+ Eigenschaft hinzufügen
Speisekarte
Angebotsliste
Verkauft
27
27
Verkauft
27
111 256 €
(1 324 € / m²)
Verkauf
4
1
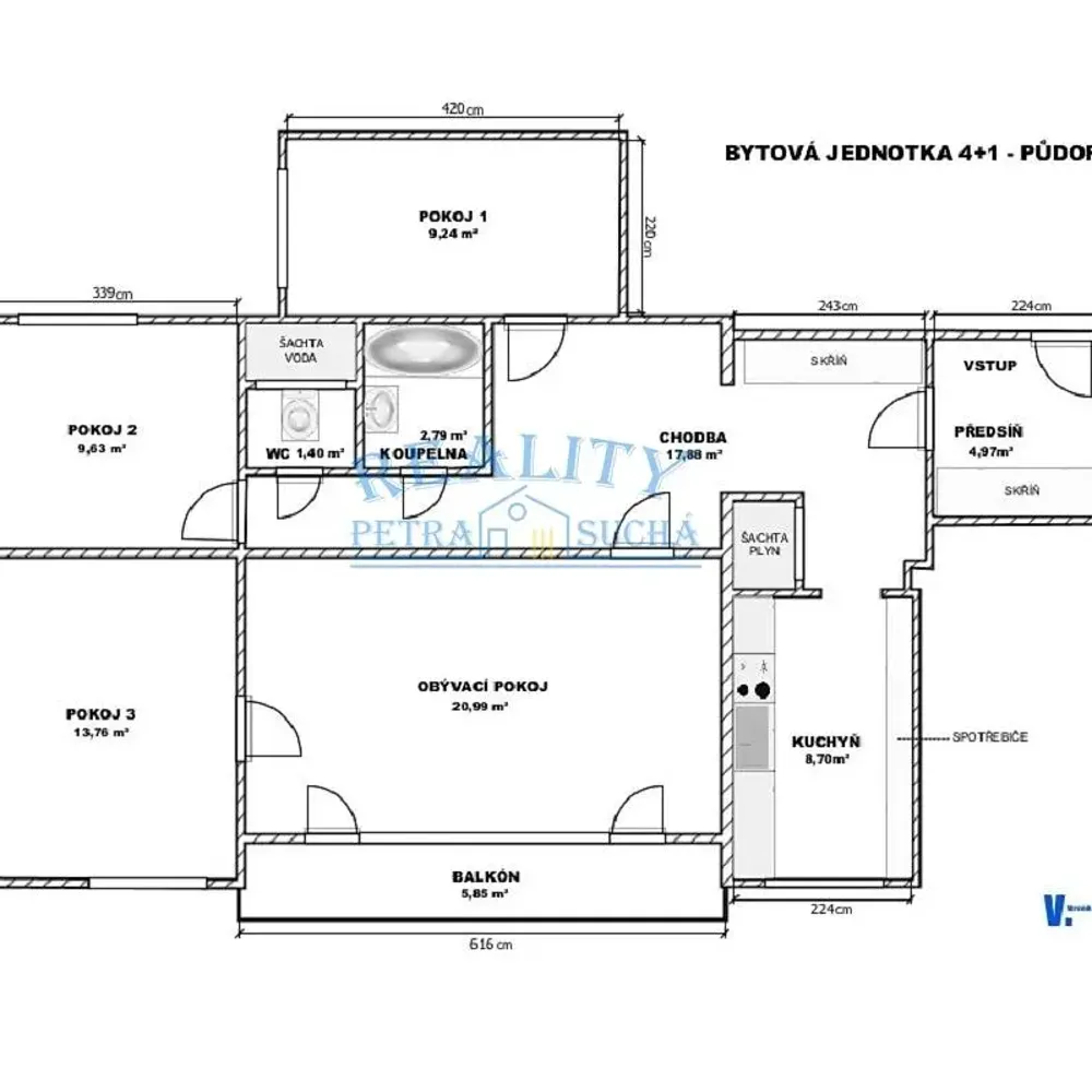
84 m²
Obvodová, Aussig
Auf Karte anzeigen
Zu Favoriten hinzufügen
Aktie
schlafzimmer
4
wohnung
84 m²
badezimmer
1
aufzug
Ja
parken
NEIN
zustand
Andere
keller
NEIN
terrasse
NEIN
Beschreibung
Übersetzen nach Englisch
Nabízíme ke koupi byt v družstevním vlastnictví o dispozici 4+1/L a velikosti 84m² nacházející se v 8 NP panelového domu v obci Ústí nad Labem – část ...
Vollständige Beschreibung anzeigen
Parameter
Ausstattung & Funktionen
Aufzug
Internet
Parameter
Eigentum:
Kooperative
Zustand:
Andere
Energieintensität:
G – Extrem verschwenderisch
Gebäudetyp:
Panel
Heizungsart:
central_remote, floor
Alle Parameter anzeigen
Alter des Angebots:
98Tage
Aktualisiert:
52Tage
Anzeige melden
Ortschaften
Obvodová, Aussig
Die Standortangabe ist nur ungefähr, wir kennen die genaue Adresse nicht.
Bitte genaue Adresse anfordern
Karte vergrößern
Öffentliche Einrichtungen
Petra Suchá Reality
Jan Pánek
E-Mail anzeigen
Telefonnummer anzeigen
Verkäufer kontaktieren
Petra Suchá Reality
Jan Pánek
E-Mail anzeigen
Telefonnummer anzeigen
Verkäufer kontaktieren
Ähnliche Anzeigen
|
Ähnliches im Ausland
|
Verkauf
Wohnungen
Tschechien
Aussig
Schönpriesen
Krásné Březno-Pod vyhlídkou