Prodej
Pronájem
Blog
O nás
+ Přidat nemovitost
Menu
Výpis nabídek
9
9
9
255 000 €
(2 772 € / m²)
Prodej
4
2+
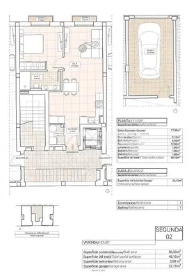
92 m²
Zobrazit na mapě
Do oblíbených
Sdílet
ložnice
4
plocha
92 m²
koupelny
2+
výtah
Ne
parkování
Ne
stav
Ostatní
suterén
Ne
terasa
Ano
Popis
Přeložit do angličtiny
شقق من غرفة نوم واحدة إلى ثلاث غرف نوم في وادي الكروم في هوندون دي لاس نيفيس ذات المناظر الطبيعية الخلابة
تقع هذه الشقق الأنيقة في وادي هوندون دي لاس ...
Zobrazit celý popis
Parametry
Vybavení & vlastnosti
Klimatizace
Parametry
Vlastnictví:
Ostatní
Stav:
Ostatní
Typ budovy:
Ostatní
Typ vytápění:
Ostatní
Vybavení:
Ostatní
Stáří nabídky:
258 dní
Aktualizováno:
204 dní
Nahlásit inzerát
Lokalita
Lokalita je orientační, neznáme přesnou adresu.
Požádat o přesnou adresu
Zvětšit mapu
Občanská vybavenost
TEKCE Real Estate
Zobrazit telefon
Kontaktovat prodejce
TEKCE Real Estate
Zobrazit telefon
Kontaktovat prodejce
Podobné inzeráty
|
Podobné v zahraničí
|
Verkauf
Wohnungen
Spanien