Verkauf
Mieten
Blog
Über uns
+ Eigenschaft hinzufügen
Speisekarte
Angebotsliste
13
13
13
120 665 €
(4 827 € / m²)
Verkauf
1
1
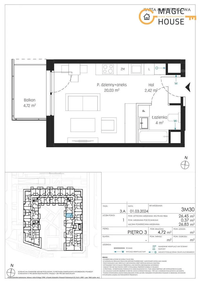
25 m²
Stara Stocznia, Gdańsk
Auf Karte anzeigen
Zu Favoriten hinzufügen
Aktie
schlafzimmer
1
wohnung
25 m²
badezimmer
1
aufzug
NEIN
parken
NEIN
zustand
keller
NEIN
terrasse
NEIN
Beschreibung
Übersetzen nach Englisch
luksus, przestrzeń i prestiż nad samą MotławąSzukasz apartamentu, który łączy wyjątkową lokalizację, nowoczesny design i najwyższy standard życia? in...
Vollständige Beschreibung anzeigen
Parameter
Parameter
Eigentum:
Andere
Heizungsart:
Andere
Ausrüstung:
Andere
Alter des Angebots:
134Tage
Aktualisiert:
29Tage
Anzeige melden
Ortschaften
Stara Stocznia, Gdańsk
Die Standortangabe ist nur ungefähr, wir kennen die genaue Adresse nicht.
Bitte genaue Adresse anfordern
Karte vergrößern
Öffentliche Einrichtungen
MAGIC HOUSE BIURO NIERUCHOMOŚCI MAGIC HOUSE BIURO NIERUCHOMOŚCI
Sergiusz Szczerbicz
E-Mail anzeigen
Telefonnummer anzeigen
Verkäufer kontaktieren
MAGIC HOUSE BIURO NIERUCHOMOŚCI MAGIC HOUSE BIURO NIERUCHOMOŚCI
Sergiusz Szczerbicz
E-Mail anzeigen
Telefonnummer anzeigen
Verkäufer kontaktieren
Ähnliche Anzeigen
Ähnliches im Ausland
Verkauf
Wohnungen
Polen