Verkauf
Mieten
Blog
Über uns
+ Eigenschaft hinzufügen
Speisekarte
Angebotsliste
Verkauft
9
9
Verkauft
9
82 893 €
(1 974 € / m²)
Verkauf
2
1
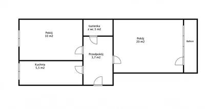
42 m²
Auf Karte anzeigen
Zu Favoriten hinzufügen
Aktie
schlafzimmer
2
wohnung
42 m²
badezimmer
1
aufzug
NEIN
parken
NEIN
zustand
keller
NEIN
terrasse
NEIN
Beschreibung
Übersetzen nach Englisch
Na sprzedaż 2 pokojowe mieszkanie z balkonem o powierzchni 42,23 m2 w Świdniku.
Mieszkanie znajduję się na parterze niskiego bloku z 1980 r.
Nowa inst...
Vollständige Beschreibung anzeigen
Parameter
Ausstattung & Funktionen
Internet
Parameter
Eigentum:
Andere
Gebäudetyp:
Andere
Heizungsart:
Andere
Ausrüstung:
Andere
Alter des Angebots:
139Tage
Aktualisiert:
76Tage
Anzeige melden
Ortschaften
Die Standortangabe ist nur ungefähr, wir kennen die genaue Adresse nicht.
Bitte genaue Adresse anfordern
Karte vergrößern
Öffentliche Einrichtungen
Biuro Nieruchomości KWADRAT
Remigiusz Baran
E-Mail anzeigen
Telefonnummer anzeigen
Verkäufer kontaktieren
Biuro Nieruchomości KWADRAT
Remigiusz Baran
E-Mail anzeigen
Telefonnummer anzeigen
Verkäufer kontaktieren
Ähnliche Anzeigen
|
Ähnliches im Ausland
|
Verkauf
Wohnungen
Polen