Verkauf
Mieten
Blog
Über uns
+ Eigenschaft hinzufügen
Speisekarte
Angebotsliste
15
15
15
335 000 €
(6 091 € / m²)
Verkauf
2
1
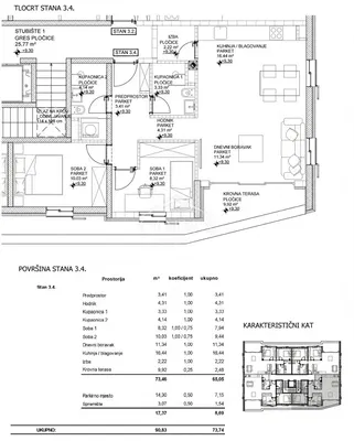
55 m²
Grad Cres
Auf Karte anzeigen
Zu Favoriten hinzufügen
Aktie
schlafzimmer
2
wohnung
55 m²
badezimmer
1
aufzug
Ja
parken
Ja
zustand
Andere
keller
NEIN
terrasse
NEIN
Beschreibung
Übersetzen nach Englisch
U ponudi je jedina novogradnja u samom starom dijelu grada Cresa, smještena na svega 50 metara od mora, što je iznimna rijetkost koja se na tržištu po...
Vollständige Beschreibung anzeigen
Parameter
Ausstattung & Funktionen
Loggia
Klimaanlage
Garage
Aufzug
Privatparkplatz
Internet
Gärten
Parameter
Eigentum:
Andere
Zustand:
Andere
Gebäudetyp:
Andere
Heizungsart:
Andere
Ausrüstung:
Andere
Alter des Angebots:
63Tage
Aktualisiert:
63Tage
Anzeige melden
Ortschaften
Grad Cres
Die Standortangabe ist nur ungefähr, wir kennen die genaue Adresse nicht.
Bitte genaue Adresse anfordern
Karte vergrößern
Öffentliche Einrichtungen
Codex nekretnine
Gordana Grgat
E-Mail anzeigen
Telefonnummer anzeigen
Verkäufer kontaktieren
Codex nekretnine
Gordana Grgat
E-Mail anzeigen
Telefonnummer anzeigen
Verkäufer kontaktieren
Ähnliche Anzeigen
Ähnliches im Ausland
Verkauf
Wohnungen
Kroatien