Verkauf
Mieten
Blog
Über uns
+ Eigenschaft hinzufügen
Speisekarte
Angebotsliste
2
2
1 360 000 €
(8 000 € / m²)
Verkauf
4
1
170 m²
Auf Karte anzeigen
Zu Favoriten hinzufügen
Aktie
schlafzimmer
4
wohnung
170 m²
badezimmer
1
aufzug
Ja
parken
NEIN
zustand
Andere
keller
NEIN
terrasse
Ja
Beschreibung
Übersetzen nach Englisch
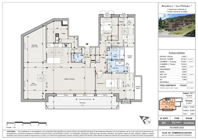
Châtel Immo votre agence immobilière en vallée d'Abondance vous propose dans ce programme neuf 'Les Pléiades' composé de seulement 7 appartements et d...
Vollständige Beschreibung anzeigen
Parameter
Ausstattung & Funktionen
Aufzug
Parameter
Eigentum:
Andere
Zustand:
Andere
Gebäudetyp:
Andere
Heizungsart:
Andere
Ausrüstung:
Andere
Alle Parameter anzeigen
Alter des Angebots:
184Tage
Aktualisiert:
184Tage
Anzeige melden
Ortschaften
Die Standortangabe ist nur ungefähr, wir kennen die genaue Adresse nicht.
Bitte genaue Adresse anfordern
Karte vergrößern
Öffentliche Einrichtungen
Chatel Immo
Telefonnummer anzeigen
Verkäufer kontaktieren
Chatel Immo
Telefonnummer anzeigen
Verkäufer kontaktieren
Ähnliche Anzeigen
|
Ähnliches im Ausland
|
Verkauf
Wohnungen
Frankreich