Prodej
Pronájem
Blog
O nás
+ Přidat nemovitost
Menu
Výpis nabídek
13
13
13
2 591 983 Kč
(61 714 Kč / m²)
Prodej
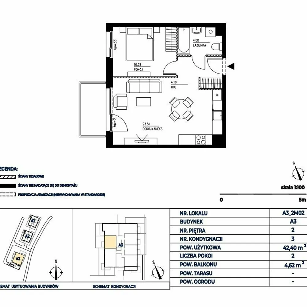
2+1
42 m²
Stankiewicza, Gdańsk
Zobrazit na mapě
Do oblíbených
Sdílet
místnosti
2+1
plocha
42 m²
koupelny
1
výtah
Ne
parkování
Ne
stav
suterén
Ne
terasa
Ne
Popis
Přeložit do češtiny
NOWA INWESTYCJA NA MAPIE GDAŃSKA Mamy przyjemność przedstawić nową inwestycję, składającą się z 6 bloków wielorodzinnych . Zaledwie 4 kondygnacje ora...
Zobrazit celý popis
Parametry
Parametry
Vlastnictví:
Ostatní
Typ budovy:
Ostatní
Typ vytápění:
Ústřední dálkové
Vybavení:
Ostatní
Stáří nabídky:
801 dní
Aktualizováno:
801 dní
Nahlásit inzerát
Lokalita
Stankiewicza, Gdańsk
Lokalita je orientační, neznáme přesnou adresu.
Požádat o přesnou adresu
Zvětšit mapu
Občanská vybavenost
BRACIA SADURSCY
Arkadiusz Zemła
Zobrazit E-mail
Zobrazit telefon
Kontaktovat prodejce
BRACIA SADURSCY
Arkadiusz Zemła
Zobrazit E-mail
Zobrazit telefon
Kontaktovat prodejce
Podobné inzeráty
|
Podobné v zahraničí
|
Prodej
Byty
Polsko