Prodej
Pronájem
Blog
O nás
+ Přidat nemovitost
Menu
Výpis nabídek
11
11
11
5 810 000 Kč
(145 250 Kč / m²)
Prodej
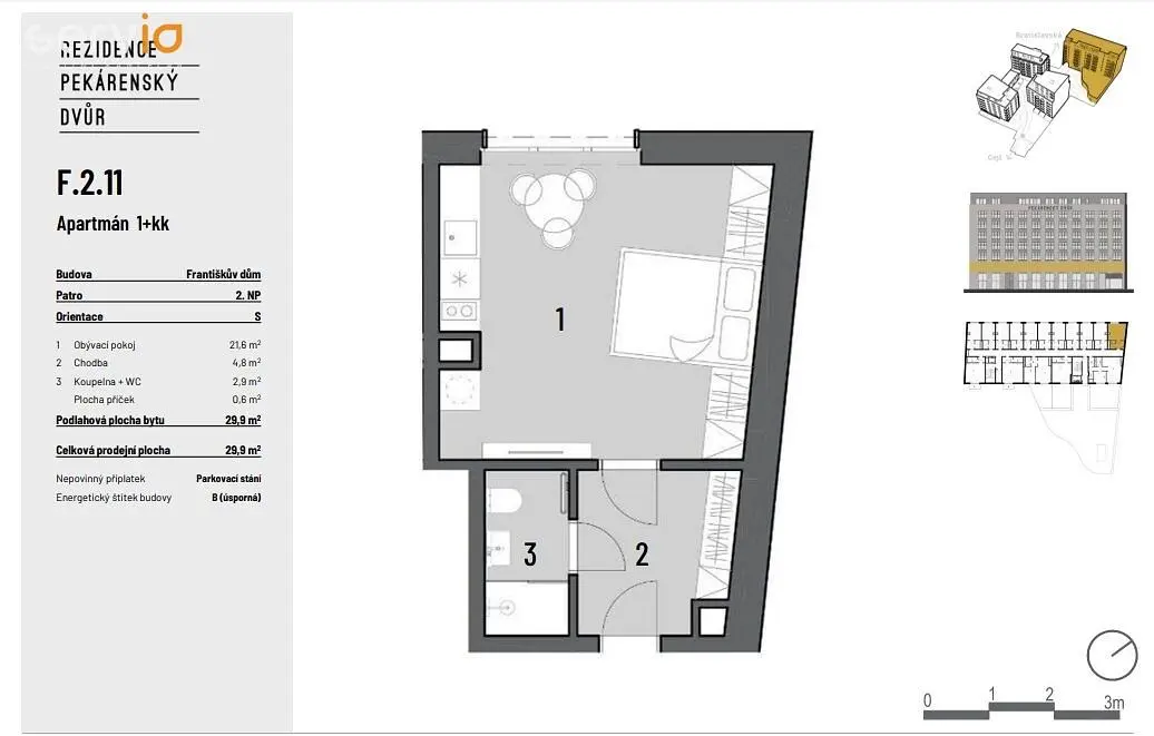
1+kk
40 m²
Bratislavská, Brno
Zobrazit na mapě
Do oblíbených
Sdílet
místnosti
1+kk
plocha
40 m²
koupelny
1
výtah
Ano
parkování
Ne
stav
Ostatní
suterén
Ne
terasa
Ne
Popis
Hledáte bydlení v blízkosti centra města, se službami pětihvězdičkového hotelu, klubovým charakterem, pestrou nabídkou služeb výhradně pro rezidenty, ...
Zobrazit celý popis
Parametry
Vybavení & vlastnosti
Výtah
Parametry
Vlastnictví:
Osobní
Stav:
Ostatní
Energetická náročnost:
B - Velmi úsporná
Typ budovy:
Cihla
Typ vytápění:
Ostatní
Zobrazit všechny parametry
Stáří nabídky:
40 dní
Aktualizováno:
40 dní
Nahlásit inzerát
Lokalita
Bratislavská, Brno
Lokalita je orientační, neznáme přesnou adresu.
Požádat o přesnou adresu
Zvětšit mapu
Občanská vybavenost
Servio s.r.o.
Ella Finsterle
Zobrazit E-mail
Zobrazit telefon
Kontaktovat prodejce
Servio s.r.o.
Ella Finsterle
Zobrazit E-mail
Zobrazit telefon
Kontaktovat prodejce
Podobné inzeráty
|
Podobné v zahraničí
|
Prodej
Byty
Česko
Jihomoravský kraj