Разпродажба
Лизинг
Блог
За нас
+ Добавяне на имот
Меню
Списък с оферти
6
6
6
336 900 €
(6 876 € / м²)
Разпродажба
2
1
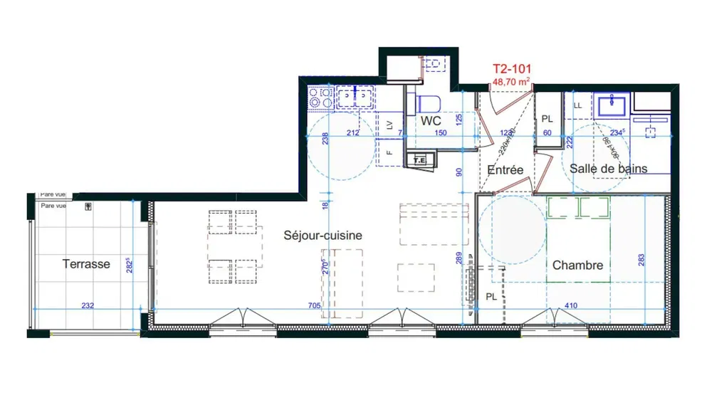
49 м²
Impasse du Point du Jour, Lyon
Покажи на картата
Добави към любими
Споделяне
спалня
2
плосък
49 м²
бани
1
асансьор
Да
паркинг
Не
щат
Друго
мазе
Не
тераса
Да
Описание
Превод на английски
iad France - Sarah Rozière (06 99 86 19 42) vous propose : Appartement T2 avec terrasse, Lyon 5.Située Avenue du Point du Jour à Lyon 5, au cOEur d’un...
Покажи пълно описание
Параметри
Оборудване и характеристики
Асансьор
Генерирано от изкуствен интелект
Тераса
Параметри
Собственост:
Друго
Щат:
Друго
тип сграда:
Друго
Тип отопление:
Друго
Оборудване:
Друго
Показване на всички параметри
Възраст на офертата:
62дни
Актуализирано:
1дни
Докладване на реклама
Местности
Impasse du Point du Jour, Lyon
Местоположението е приблизително, не знаем точния адрес.
Заявка за точен адрес
Уголемяване на картата
Граждански удобства
IAD France
Покажи телефон
Свържете се с продавача
IAD France
Покажи телефон
Свържете се с продавача
Подобни реклами
|
Подобни в чужбина
|
Продажба
Апартаменти
Франция