Разпродажба
Лизинг
Блог
За нас
+ Добавяне на имот
Меню
Списък с оферти
23
23
23
349 000 €
(3 490 € / м²)
Разпродажба
3
1
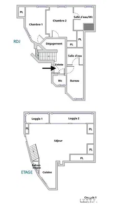
100 м²
Boulevard Carnot, Le Cannet
Покажи на картата
Добави към любими
Споделяне
спалня
3
плосък
100 м²
бани
1
асансьор
Не
паркинг
Не
щат
Друго
мазе
Не
тераса
Да
Описание
Превод на английски
iad France - Amandine Fornetti vous propose: NOUVEAUTÉ sur LE CANNET - Hauteurs / Chemin des Tignes :A seulement 3km du Palais des Festivals de Cannes...
Покажи пълно описание
Параметри
Параметри
Собственост:
Друго
Щат:
Друго
Енергийна интензивност:
D - По-малко икономичен
тип сграда:
Друго
Тип отопление:
Друго
Показване на всички параметри
Възраст на офертата:
11дни
Актуализирано:
4дни
Докладване на реклама
Местности
Boulevard Carnot, Le Cannet
Местоположението е приблизително, не знаем точния адрес.
Заявка за точен адрес
Уголемяване на картата
Граждански удобства
IAD France
Покажи телефон
Свържете се с продавача
IAD France
Покажи телефон
Свържете се с продавача
Подобни реклами
|
Подобни в чужбина
|
Продажба
Апартаменти
Франция