Разпродажба
Лизинг
Блог
За нас
+ Добавяне на имот
Меню
Списък с оферти
6
6
6
6 638 000 Kč
(125 245 Kč / м²)
Разпродажба
2
1
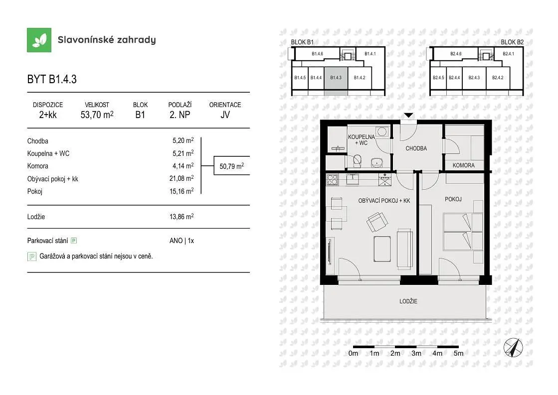
53 м²
Loudova, Оломоуц
Покажи на картата
Добави към любими
Споделяне
спалня
2
плосък
53 м²
бани
1
асансьор
Не
паркинг
Не
щат
Ново строителство
мазе
Не
тераса
Не
Описание
Превод на английски
Nová etapa projektu SLAVONÍNSKÉ ZAHRADY navazuje na již realizované budovy v okolí ulice Loudova a nabízí kvalitní domov pro rodiny s dětmi, mladé pár...
Покажи пълно описание
Параметри
Параметри
Собственост:
Лично
Щат:
Ново строителство
тип сграда:
Друго
Тип отопление:
Друго
Оборудване:
Необзаведен
Показване на всички параметри
Възраст на офертата:
76дни
Актуализирано:
76дни
Докладване на реклама
Местности
Loudova, Оломоуц
Местоположението е приблизително, не знаем точния адрес.
Заявка за точен адрес
Уголемяване на картата
Граждански удобства
Carroll & Dohnal s.r.o.
Ing. Lenka Carroll
Покажи имейл
Покажи телефон
Свържете се с продавача
Carroll & Dohnal s.r.o.
Ing. Lenka Carroll
Покажи имейл
Покажи телефон
Свържете се с продавача
Подобни реклами
Подобни в чужбина
Продажба
Апартаменти
Чехия
Оломоуцкий край
Оломоуц
Nové Sady u Olomouce
Nové Sady