Разпродажба
Лизинг
Блог
За нас
+ Добавяне на имот
Меню
Списък с оферти
4
4
70 148 €
(988 € / м²)
Разпродажба
Нетипично
1
71 м²
Покажи на картата
Добави към любими
Споделяне
спалня
atypical
плосък
71 м²
бани
1
асансьор
Не
паркинг
Не
щат
Друго
мазе
Не
тераса
Не
Описание
Превод на английски
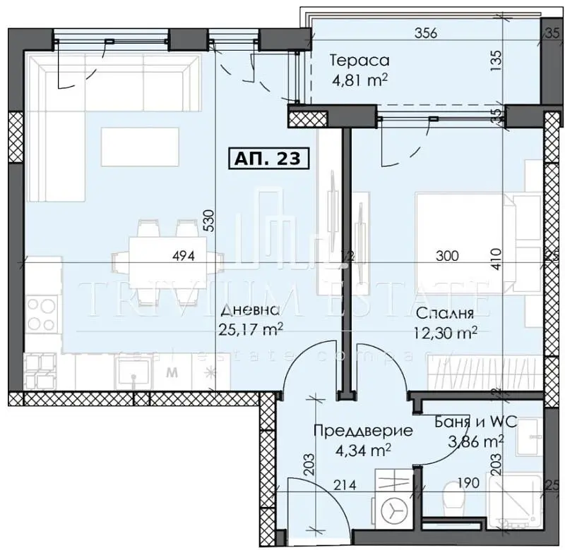
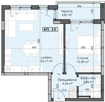
Агенция TRIVIUM ESTATE има удоволствието да Ви предложи за продажба двустаен апартамент в процес на стартиране на строителството в кв. Тракия. Имотът...
Покажи пълно описание
Параметри
Параметри
Собственост:
Друго
Щат:
Друго
тип сграда:
Друго
Тип отопление:
Друго
Оборудване:
Друго
Възраст на офертата:
69дни
Актуализирано:
68дни
Докладване на реклама
Местности
Местоположението е приблизително, не знаем точния адрес.
Заявка за точен адрес
Уголемяване на картата
Граждански удобства
ТРИВИУМ ЕСТЕЙТ
Покажи телефон
Свържете се с продавача
ТРИВИУМ ЕСТЕЙТ
Покажи телефон
Свържете се с продавача
Подобни реклами
Подобни в чужбина
Продажба
Апартаменти
България