Разпродажба
Лизинг
Блог
За нас
+ Добавяне на имот
Меню
Списък с оферти
17
17
17
245 800 €
(3 462 € / м²)
Разпродажба
Нетипично
1
71 м²
Хъшове
Покажи на картата
Добави към любими
Споделяне
спалня
atypical
плосък
71 м²
бани
1
асансьор
Не
паркинг
Не
щат
Друго
мазе
Не
тераса
Не
Описание
Превод на английски
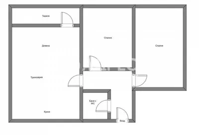
Тристаен апартамент преустроен от двустаен в Красна поляна 1. Имотът е напълно обзаведен след нов и качествен ремонт, неизползван. Две спални, голяма ...
Покажи пълно описание
Параметри
Генерирано от изкуствен интелект
Тераса
Параметри
Собственост:
Друго
Щат:
Друго
тип сграда:
Друго
Тип отопление:
Друго
Оборудване:
Друго
Възраст на офертата:
68дни
Актуализирано:
17дни
Докладване на реклама
Местности
Хъшове
Местоположението е приблизително, не знаем точния адрес.
Заявка за точен адрес
Уголемяване на картата
Граждански удобства
АДРЕС НЕДВИЖИМИ ИМОТИ
Покажи телефон
Свържете се с продавача
АДРЕС НЕДВИЖИМИ ИМОТИ
Покажи телефон
Свържете се с продавача
Подобни реклами
Подобни в чужбина
Продажба
Апартаменти
България