Разпродажба
Лизинг
Блог
За нас
+ Добавяне на имот
Меню
Списък с оферти
21
21
21
11 000 Kč
(172 Kč / м²)
Лизинг
2
1
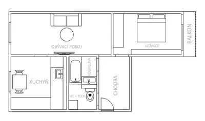
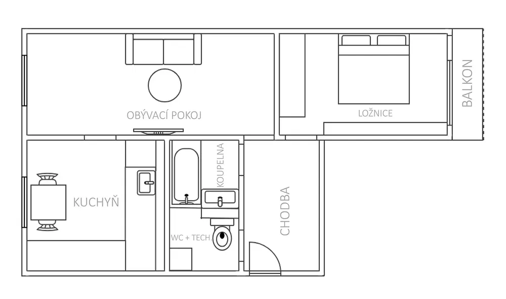
64 м²
Marš. Rybalka, Мост
Покажи на картата
Добави към любими
Споделяне
спалня
2
плосък
64 м²
бани
1
асансьор
Не
паркинг
Не
щат
Оригинално състояние
мазе
Не
тераса
Не
Описание
Превод на английски
Ve výhradním zastoupení nabízím k dlouhodobému pronájmu prostorný a světlý družstevní byt 2+1 o rozloze 64 m². Byt se nachází v 7. patře udržovaného p...
Покажи пълно описание
Параметри
Оборудване и характеристики
Лоджия
Генерирано от изкуствен интелект
След реконструкция
Параметри
Собственост:
Кооператив
Щат:
Оригинално състояние
Енергийна интензивност:
G - Изключително разточително
тип сграда:
Панел
под:
8. етаж от 7
Възраст на офертата:
46дни
Актуализирано:
9дни
Докладване на реклама
Местности
Marš. Rybalka, Мост
Местоположението е приблизително, не знаем точния адрес.
Заявка за точен адрес
Уголемяване на картата
Граждански удобства
The Most reality s.r.o. - Century 21
Radek Šprinc
Покажи имейл
Покажи телефон
Свържете се с продавача
The Most reality s.r.o. - Century 21
Radek Šprinc
Покажи имейл
Покажи телефон
Свържете се с продавача
Подобни реклами
Подобни в чужбина
Наем
Апартаменти
Чехия
Устецкий край
Мост
Most II